authors

1682
 

events

236591
Registration Forgot your password?
Memuarist » Members » Aleksandr_Komarovsky » Годы ученичества - 9

Годы ученичества - 9

01.08.1928
Москва, Московская, Россия
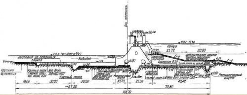
Gоперечный разрез плотины гидростанции Свирь-3

Вот почему я был очень рад представившейся возможности после окончания института работать в Московском проектном бюро Свирьстроя. Оно тогда разрабатывало некоторые части проекта крупного гидроэнергетического узла на р. Свирь (тоже по плану ГОЭЛРО), который должен был обеспечить электроэнергией бурно растущую промышленность Ленинграда.

Это бюро возглавлялось профессором А. И. Фидманом и состояло всего из нескольких инженеров — его учеников. Мне пришлось работать над двумя основными темами: составлять эскизные проекты плотины 3-го Свирского гидроузла, основанной на девонских глинах, и проектировать (с применением точных методов расчета на основе теории упругости) металлические ворота шлюза этого же гидроузла. Последняя работа велась под непосредственным руководством замечательного знатока теории грунтов, сопротивления материалов и статических расчетов профессора Николая Михайловича Герсеванова.

Проект плотины разрабатывался в двух вариантах: один — с глубоким бетонным зубом в верховой части плотины, другой — с развитым в верховую сторону профилем (как тогда мы говорили, с «распластанным профилем») с небольшим центральным бетонным зубом и стальным шпунтом в середине этого зуба.

Проводя тщательное экономическое сравнение и особенно учитывая производственные сложности сооружения глубокого бетонного зуба, я пришел к выводу о безусловной целесообразности второго варианта, т. е. плотины с развитым профилем. А. И. Фидман согласился с этой точкой зрения. После серьезного и, надо сказать, бурного обсуждения этого вопроса в управлении Свирьстроя (в Ленинграде) этот вариант был утвержден. Принятая и осуществленная конструкция плотины представлена на рисунке.


Интересно отметить, что и в годы начала строительства крупных объектов в нашей стране, равно как и сейчас, придавалось большое значение составлению конкурирующих конструктивных и планировочных вариантов различных инженерных решений с их глубоким экономическим и производственным анализом и сравнением.

В своей дальнейшей проектной и строительной практике я не раз убеждался, что сооружения даже при большем объеме работ, но с меньшим заглублением (особенно на водоносных грунтах) оказываются экономичнее и производственно проще. Это определяется прежде всего не объемом бетонных работ, а большой трудоемкостью сооружения заглубленного зуба с неизбежным применением стальных шпунтов, креплений и обычно сложного водоотлива.


25.03.2026 в 17:14

anticopiright Свободное копирование
Любое использование материалов данного сайта приветствуется. Наши источники - общедоступные ресурсы, а также семейные архивы авторов. Мы считаем, что эти сведения должны быть свободными для чтения и распространения без ограничений. Это честная история от очевидцев, которую надо знать, сохранять и передавать следующим поколениям.
© 2011-2026, Memuarist.com
Idea by Nick Gripishin (rus)
Legal information
Terms of Advertising