Autoren

1668
 

Aufzeichnungen

234011
Registrierung Passwort vergessen?
Memuarist » Members » Aleksandr_Komarovsky » Новая техника - новые задачи - 1

Новая техника - новые задачи - 1

28.06.1954
Москва, Московская, Россия
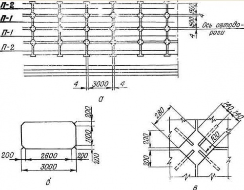
Сборные железобетонные плиты для покрытия автодорог

Глава восьмая  

  

НОВАЯ ТЕХНИКА — НОВЫЕ ЗАДАЧИ

  

 

28 июня 1954 г. в печати появилось сообщение о пуске в СССР первой атомной электростанции.

 

«В настоящее время, — говорилось в сообщении, — в Советском Союзе усилиями советских ученых и инженеров успешно завершена работа по проектированию и строительству первой промышленной электростанции на атомной энергии полезной мощностью 5000 киловатт.

27 июня 1954 года атомная электростанция была пущена в эксплуатацию и дала электрический ток для промышленности и сельского хозяйства прилежащих районов.

Впервые промышленная турбина работает не за счет сжигания угля или других видов топлива, а за счет атомной энергии — расщепления ядра атома урана.

Вводом в действие атомной электростанции сделан реальный шаг в деле мирного использования атомной энергии.

Советскими учеными и инженерами ведутся работы по созданию промышленных электростанций на атомной энергии мощностью 50—100 тыс. киловатт».

 

Конечно, сейчас, спустя 17 лет, это сообщение о первой АЭС выглядит заурядным. Ведь наша атомная энергетика далеко продвинулась вперед, давно уже функционируют атомные станции мощностью в несколько сот тысяч киловатт. В девятой пятилетке согласно Директивам XXIV съезда КПСС атомные электростанции дадут 12% всего прироста мощностей электростанций СССР. Всего же за 10—12 лет будут введены в действие атомные электростанции мощностью 30 миллионов киловатт!..

Но ведь вся эта грандиозная программа начинается с той, нашей первой АЭС. И я вспоминаю о ней потому, что ее строительство в какой-то мере характеризует новые задачи, поставленные сразу же после войны перед советскими учеными, инженерами и строителями, в частности перед коллективом нашего министерства.

Атомная электростанция, ускоритель элементарных частиц (синхроциклотрон) в Дубне, синхрофазотрон в районе Серпухова и многие другие комплексы научно-исследовательских установок, о которых пойдет речь ниже, были чрезвычайно ответственными, срочными и уникальными сооружениями.

Рассказ об этом строительстве мне хотелось бы предварить некоторыми общими замечаниями и выводами.

1. Строительства, как правило, располагались весьма далеко от автомобильных, а тем более железных дорог. Практика давно уже показала, что всякая попытка начинать на площадках даже подготовительные работы, не построив предварительно капитальных подъездных путей, не ускоряла, а только задерживала и дезорганизовывала строительство. Поэтому на всех этих стройках независимо от заданных сроков был установлен железный порядок — сначала дороги, а затем уже освоение площадки.

Дороги строились в основном из завозимых с существующих заводов нашей системы железобетонных дорожных плит, которые на конечной стадии строительства использовались как основания под постоянную эксплуатационную автодорогу с асфальтовым или бетонным покрытием. После сравнения ряда вариантов мы убедились в наибольшей целесообразности, простоте изготовления и устойчивости сборных железобетонных дорог по представленной на рисунке схеме. Всякие тонкие железобетонные плиты, в том числе ребристые, многодырчатые, оказывались хрупкими и нестойкими. Для отдельных малонапряженных и временных дорог нередко практиковалась так называемая колейная прокладка железобетонных плит того же типа с обязательной связью арматурными стержнями плит одной колеи с другой и заполнением пространства между колеями щебенкой с соответствующим уплотнением.

Опыт подсказал также, что применять на строительствах для верхнего покрытия дорог асфальт нецелесообразно. При интенсивном движении грузовых машин он быстро разрушается, его трудно укладывать во время неизбежных летних дождей и практически невозможно в зимнее время.

 


27.03.2026 в 17:28


anticopiright Свободное копирование
Любое использование материалов данного сайта приветствуется. Наши источники - общедоступные ресурсы, а также семейные архивы авторов. Мы считаем, что эти сведения должны быть свободными для чтения и распространения без ограничений. Это честная история от очевидцев, которую надо знать, сохранять и передавать следующим поколениям.
© 2011-2026, Memuarist.com
Rechtliche Information
Bedingungen für die Verbreitung von Reklame